Selling

Godrej Park Retreat

₹14,400,000

  • (0)
  • 102 Views
  • Dec 30, 2024
  • Bangalore, Karnataka

Description

FLOORING AND DADO

  • 600 x 600 vitrified tile in living/dining, kitchen and bedrooms
  • Antiskid tiles flooring for toilets, utility and balcony
  • Ceramic tile dado upto false ceiling for toilets

DOORS

  • Main door: Pre hung door
  • Bedroom door: Pre hung door
  • Toilet door: Pre hung door

UPVC WINDOWS

  • UPVC window with mosquito mesh (all windows will get mosquito mesh except toilet windows and casement windows.)

RAILING

  • MS railings for balcony

KITCHEN/UTILITY

  • For 2 and 3 BHK: platform and single bowl sink will be provided in utility (no platform, no sink and no dado will be provided in the kitchen)
  • For 1 BHK - platform, sink and dado (600 mm high from platform top) will be provided in kitchen (no platform and no sink will be provided in the utility)

PAINTING

  • Internal walls: Emulsion paint (no paint above false ceiling in toilet)
  • Ceiling: OBD (toilet ceiling above false ceiling will not be painted)
  • External paint: Exterior grade texture paint and exterior grade emulsion paint in balconies and utilities
  • Basement paint: OBD/CEM paint

FALSE CEILING IN TOILETS

  • Grid false ceiling
Overview
Property ID: 67
Square: 60,703 m²
Price: ₹14,400,000
Location
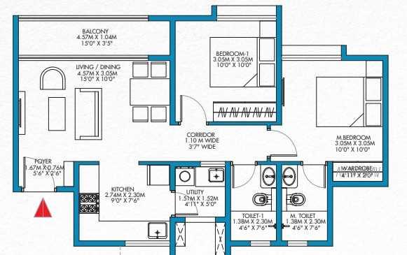
Floor plans
Master plans
  • floor

Godrej Properties brings the Godrej Group philosophy of innovation, sustainability and excellence to the real estate industry. Each Godrej Properties development combines a 120 year legacy of excellence and trust with a commitment to cutting-edge design and technology. Godrej Properties is currently developing residential, commercial and township projects spread across approximately 14.36 million square meters (147 million square feet) in 12 cities.


In the last 5 years, Godrej Properties has received over 200 awards and recognitions, including the "Real Estate Company Of The Year" at the Construction Week India Awards 2015, Golden Peacock Award for Sustainability for the year 2015 by Institute Of Directors (IOD), "Most Reliable Builder for 2014" at the CNBC AWAAZ Real Estate Awards 2014, "Innovation Leader in Real Estate" award at the NDTV Property Awards 2014 and "Popular Choice - Developer of the Year" award by ET NOW in 2013.

Write A Review
Reviews
0 out of 5
Contact Agency
Featured properties

The Most Recent Estate

Godrej Ananda Phase III
Featured Selling

Bangalore, Karnataka

  • 34,398 m²
₹9,500,000
Godrej Woodscapes
Preparing selling

Bangalore, Karnataka

  • 113,312 m²
₹12,600,000
Godrej Platinum
Selling

Bangalore, Karnataka

  • 8,094 m²
₹32,000,000
Godrej Athena
Selling

Bangalore, Karnataka

  • 26,305 m²
₹29,000,000
Godrej United
Selling

Bangalore, Karnataka

  • 32,375 m²
₹14,900,000
Godrej Air NXT
Selling

Bangalore, Karnataka

  • 297 m²
₹4,940,000
Godrej Lakeside Orchard
Selling

Bangalore, Karnataka

  • 64,345 m²
₹18,000,000
₹0